Work
RESUME
Work
RESUME
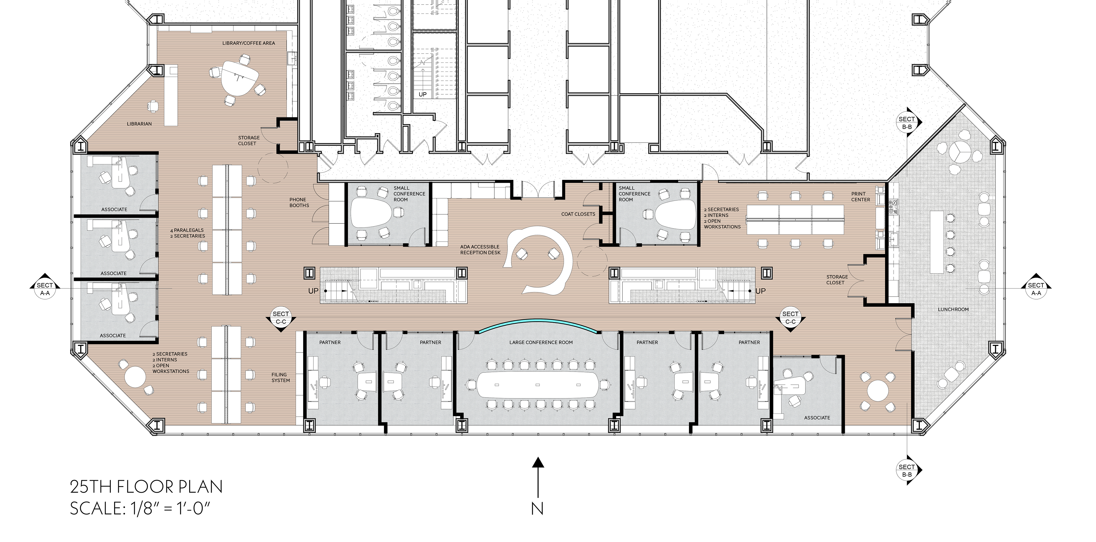
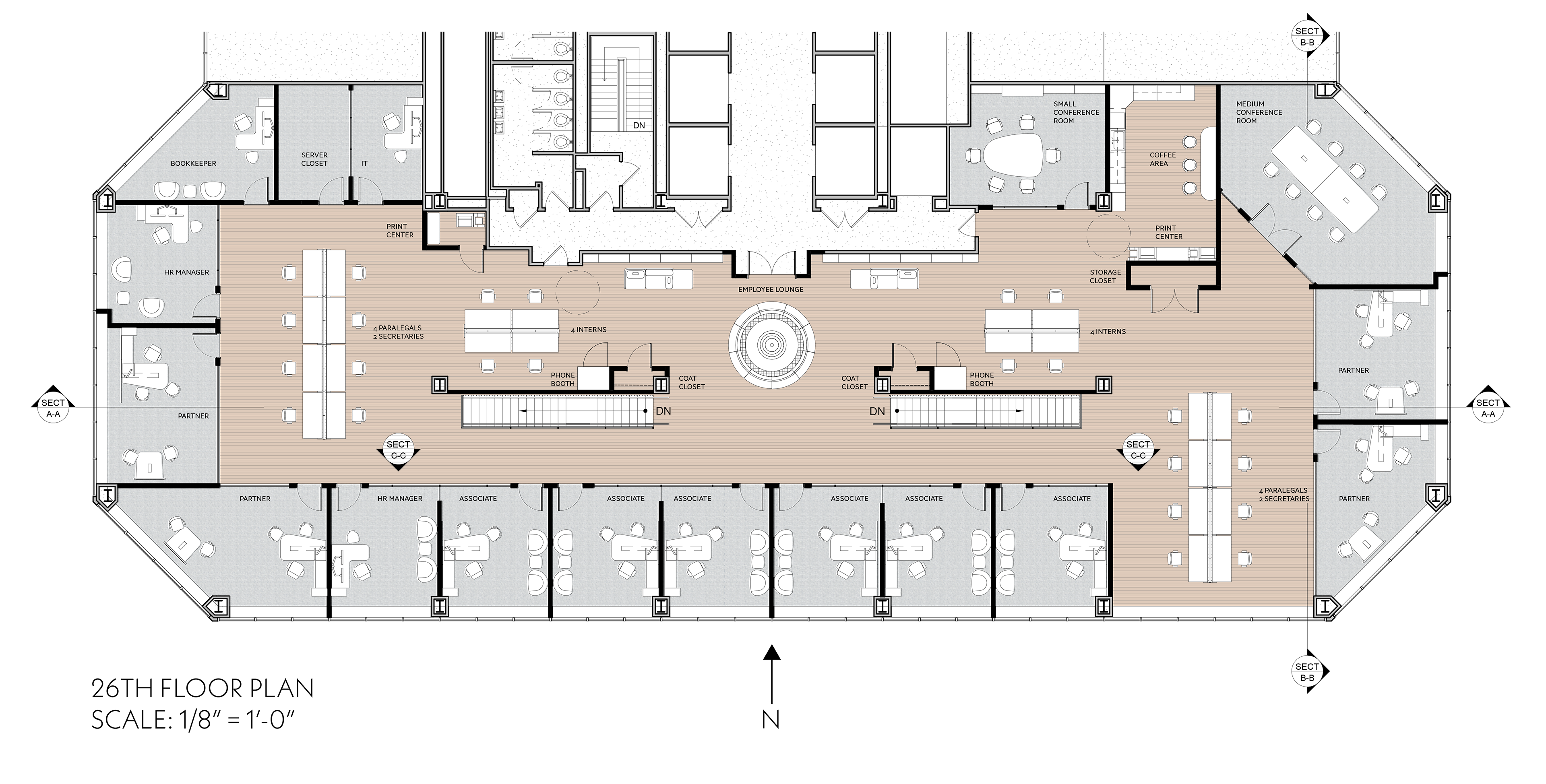
LAW FIRM
A consumer law firm in Philadelphia. Key features are references to organic materials, such as water, wood, and plants. This design limited its use with synthetic materials to mirror the sense of community felt within consumer law.
↑
Back to Top